Seconde partie sur les pyramides à degrés :
Après m'être étendu dans la description du style des pyramides à degrés, je souhaite expliquer deux choses très rapidement :
1)Le style général du complexe
2)Les appartements
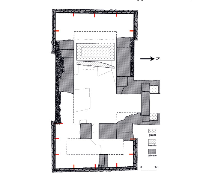
1) Il est difficile de parler du style général du complexe car on possède qu'un exemple de complexe bien conservé, celui de Djéser. Le complexe de Sekhem-khet est très inachevé, comme la pyramide, tandis que celui de Khaba est en fait inconnu car peu de fouille ont été faites.
Je vais néanmoins faire quelques généralités sur le complexe de Djéser.
Tout d'abord, il est énorme : 544,90 *277,60, ça fait 15 hectares. Ça doit être le plus gros complexe. Celui de Khephren fait 24 hectares mais c'est quasiment que du vide à tel point qu'on peut réduire le complexe de Khephren dans des murs qui délimitent une zone de 7 hectares. Le complexe de Djéser est délimité par un immense mur "à redans" orienté nord-sud :
A l'intérieur on y trouve la pyramide ainsi que tout un tas d'installations cultuelles complexes.
Voici un plan global :
Il faut savoir qu'à l'origine ce complexe était sous le sable et complètement en pièce. Il ne commence qu'à être fouillé significativement par Firth dans les années 1920, puis en décembre 1926 Jean-Philippe Lauer dirige les fouilles du complexe. Il dirigera les fouilles du complexe de Djéser tel un dictateur soviétique jusqu'en 1998 alors qu'il approche des 100 ans, il mourra en 2001. Lauer tâchera donc de redonner sa splendeur à ce complexe.
L'installation cultuelle la plus importante du complexe semble être le temple situé au nord de la pyramide. On note aussi l'existence d'une immense structure de 80 mètres sur 17 mètres au sud, appelée "tombeau sud", une réplique en miniature du caveau royale située sous la pyramide. Ce tombeau sud est peut-être un ancêtre de la "pyramide satellite" qui est aussi située au sud.
Voici donc les éléments non pyramidaux des complexes des pyramides à degrés :
-Orientée nord-sud
-Temple situé au nord
-Réseaux d'installations cultuelles complexes
Le complexe de Sekhem-khet est lui aussi orientée Nord-sud mais il y a deux frontières. La première à avoir été construites est plus petite, on a d'ailleurs dégagé un mur à redans au nord de la pyramide puis le complexe a été étendu au nord jusqu'à obtenir la taille de 544*182. Aucune autre installation cultuelle identifiée chez Sekhem-khet, sauf au sud où on découvre un petit mastaba, peut-être lui aussi ancêtre de la pyramide satellite. On aurait parallement à l'évolution "pyramide à degré => pyramide à face lisse" une autre évolution "tombeau sud => mastaba => pyramide à face lisse".
Le complexe de Khaba est inconnu, aucune fouille au nord n'a été faite, donc pas de temple confirmé.
En opposition, voici le style des complexes des pyramides à face lisse :
-Orientée est-ouest et non pas nord-sud
-Temple à l'est et non pas au Nord
-Éléments du complexes plutôt simples et modestes face à la pyramide gigantesque.
Cependant, on observe une sorte de dialectique dans certains éléments, d'abord des structures au nord réapparaitront quand le style de pyramide lisse sera tout à fait classique, ces structures sont appelées "Chapelle nord" de taille modeste comparée au temple. Je crois qu'on peut dater leurs apparitions du règne de Neferirkaré ou de Niouserrè lors de la Ve dynastie avec la pyramide de Khentkaus II, très probable épouse de Neferirkaré et mère de Niouserrè, mais ces deux rois n'ont pas de chapelle nord. Le premier roi qui a dû avoir une telle chapelle doit être Ounas, dernier roi de la Ve dynastie. La chapelle nord sera obligatoire pendant la VIe dynastie. Cette chapelle cachera de fait l'entrée de la descendrie. De plus, l'ensemble des installations cultuelles se redevelopperont une fois la construction de la pyramide lisse maîtrisée. Je m'explique. La pyramide rouge est la première grande pyramide à face lisse, au sens strict elle est peut-être la seconde pyramide à face lisse après la pyramide satellite de Meïdoum. Or, la pyramide rouge ne possède quasiment aucune installations cultuelles, juste un petit temple à l'Est. La Grande pyramide suit la construction de la pyramide rouge et cette fois-ci les installations sont plus massives, jusqu'à obtenir le complexe de Khephren où à la fois la pyramide et les temples sont massifs. Ensuite la taille des pyramides se réduiront, tandis que ceux des temples augmenteront, jusqu'à un certain équilibre sous la Ve et VIe dynastie.
2) À propos des installations intérieurs ou souterrains, je signalerai rapidement plusieurs choses.
On observe de Djéser jusqu'à Meïdoum, un appauvrissement puis une disparition du puits donnant directement sur le caveau funéraire. Sous la pyramide de Djéser se trouve un puits de 30 mètres de profondeur avec une descendrie, donnant aussi sur le caveau et s'ouvrant au nord. Cette ouverture au nord sera conservée pour les pyramides lisses mais le puits funéraire lui va disparaître. Dès la pyramide de Sekhem-khet, la descendrie prend en importance (120 mètres, un record), tandis que le puits, non seulement rétréci, mais ne donne plus directement sur la chambre funéraire. Le puits de Sekhem-khet débauche sur la descendrie. Pour Khaba c'est encore pire, le puits ne se retrouve même pas dans la pyramide, mais donne accès au début de la descendrie nord-sud, sachant qu'un autre couloir y donne accès. Pour la pyramide de Meïdoum, il n'y a aucun puits.
On observe donc au fil de la IIIe dynastie la décadence du puits face à la descendrie (qui casse le dos à tous les touristes) pour les pyramides lisses.
Voici des images pour rendre visuelle la décadence des puits funéraires dans les pyramides à degrés face à la descendrie :
-Pyramide de Djéser, puits gigantesque :
-Pyramide de Sekhem-khet, début de la décadence, le puits reste dans et sous la pyramide mais est réduit :
-Pyramide de Khaba, le puits est externe à la pyramide :
-Pyramide à Meïdoum de Snéfrou, le puits disparaît :
Dans le cas de la pyramide de Meïdoum, la chambre funéraire (inutilisée) est carrément dans le massif de la pyramide. Lors des pyramides suivantes, il y aura une élévation progressive de la chambre jusqu'à Kheops, comme pour faire le contraire de Djéser, puis la chambre redescendra et finira sous-terre, comme un retour à Djéser, mais sans puits et avec une descendrie.
L'appauvrissement et la disparition du puits est donc net pendant la transition "pyramide à degré => pyramide lisse", mais d'une manière globale, par rapport à ceux Djéser, tous les éléments des appartements funéraires deviennent plus petits voire disparaissent. Les complexe souterrains de Djéser dépassent les 5 kilomètres et plusieurs kilomètres ont ère détectés par la mission lettone pendant les années 2000, ce qui nous laisse entrevoir la possibilité de l'existence de trésors cachés.
Plus le temps passe, plus je me dis que je dois fermer cette boucle et quitter ce forum, non seulement je perds du temps, mais ma passion pour les pyramides d'Egypte ne me rend pas heureux.
Avant Juillet je supprimerai ce topic, comme tous mes autres topics. Je laisse quelques jours pour certains lecteurs.
Le 25 juin 2021 à 22:32:52 :
Plus le temps passe, plus je me dis que je dois fermer cette boucle et quitter ce forum, non seulement je perds du temps, mais ma passion pour les pyramides d'Egypte ne me rend pas heureux.Avant Juillet je supprimerai ce topic, comme tous mes autres topics. Je laisse quelques jours pour certains lecteurs.
Edit: le topic est de toute façon archivé, autant tout arrêter dès ce soir.
Ne fais pas ça pauvre fou

Temple de la Vallée et sa fonction :
le "temple de la Vallée" est un temple situé à généralement quelques centaines de mètres à l'Est d'une pyramide. Ce temple est proche du Nil (de l'époque) et est ensuite relié à un "temple funéraire" par une chaussé qui, lui, est beaucoup plus proche de la pyramide, généralement ce temple funéraire touche la face Est de la pyramide, mais ce n'est pas toujours le cas comme à Kheops ou Khephren. Ces temples sont assez peu connus car, comme ils sont éloignés de la pyramide, ils sont plus difficile à détecter.
On en a quelques uns :
-Temple de la Vallée de la pyramide rhomboïdale (mais c'est un peu un temple à mi chemin entre un temple funéraire et temple de la Vallée).
-Temple de la Vallée de la pyramide de Khephren.
-Celui de Mykerinos
-Celui de Sahourê
-Celui de Niouserrè
-Celui d'ounas
-Celui de Pepy II.
Plusieurs autres temples ont été détecté mais pas fouillé :
-Celui de Kheops, sous la banlieue Nazet-el-salman
-Celui de Pepy 1er
D'autres sont aujourd'hui totalement perdu :
-Celui d'Ouserkaf
-Celui de Téti
-Celui de Mérenrê
-Celui de Djedkare
-Celui de Mekaouhor
-Celui de Chepseskaf.
La fonction de ce type de temple est aujourd'hui difficile à cerner.
Fonction :
Aujourd'hui c'est extrêmement spéculatif, mais on a quelques indices.
D'abord l'architecture intérieur montre parfois des magasins, c'est-à-dire des salles de stockage, cependant les magasins existent aussi au temple funéraire. Cependant c'est très inconstant, les temples de Khephren montrent très peu d'espace de stockage comme celui de Sahourê et Niouserrè, quand celui de Mykerinos et Pepy II en montrent significativement. La vocation de "stocker" est donc 1) inconstante et 2) pas particulière au temple.
Cependant on a retrouvé un grand nombre de relief montrant des porteurs d'offrandes, le temple de la Vallée semble donc bien être la porte d'entrée ultime du complexe funéraire du Roi, c'est à peu près la seule chose certaine. Mais notons que c'est pas propre à ce temple, la chaussée et le temple funéraire en présente aussi, pas de chance. Mais si on considère en plus l'existence, inconstante, de lac articiel, de dingue pour accoster, comme chez Ounas, Pepy II et Sahourê, c'est par là qu'on devait forcément apporter les ressources exotiques qui ne se trouvent pas dans l'immédiateté du complexe.
Cependant, l'existence d'un véritable culte spécifique à ce temple est possible par 1) l'existence de statue de très belle qualité notamment les triades de Mykerinos et le Khephren en diorite (à vérifier) et 2) l'existence une salle à 3 niches chez Niouserrè. Le temple funéraire présente très souvent, une salle à 5 niches, or on a retrouvé des archives des temples des mentions d'un culte de statues en 5 étapes, ces niches avaient donc très probablement des statues, donc les 3 niches du temple de Niouserrè aussi.
On note aussi une particularité, Premièrement les 3 pyramides qui nous ont livré des archives des temples funéraires sont 3 pyramides dénuées de temple de la Vallée, conclusion : les archives étaient conservés proche du temple de la Vallée, et une crue du Nil trop haute peut avoir détruit les archives conservées proche du temple de la Vallée. Secondement, on observe chez Mykerinos que le temple de la Vallée s'est transformée, notamment sa cour, en petite ville, les prêtres se sont installés dedans, or on retrouve aussi des installations entourant le temple. La "ville de la pyramide" abritant les prêtres dont on trouve des traces dans la documentation égyptienne est donc à chercher proche des temples de la vallée, la preuve est que la ville de la pyramide de la pyramide rouge a été localisé à plusieurs centaines de mètres à l'est de la pyramide, proche d'où devrait exister un temple de la Vallée. Les prêtres vivaient donc près du temple de la Vallée et y conservaient les archives selon toute vraisemblance. Quand on a pas de temple de la Vallée, comme Chez Raneferef, les prêtres s'installent dans le temple funéraire quelques années après la mort du Roi.
Le temple de la Vallée semble donc visiblement un lieu de contact du complexe funéraire avec l'extérieur par ses digues, ses lacs, ses porteurs d'offrandes, sa ville de la pyramide, mais quasiment tous ses éléments sont inconstant, par exemple, pas de ville localisée près du temple de la Vallée d'ounas, juste une petite détection qui montrerait l'existence significative de brique au nord-est du temple, mais ça peut être n'importe quoi et dater de n'importe quelle époque.
Conclusion : c'est très difficile car on a un échantillon de temple très varié 
Durée du chantier de la Grande pyramide :
Durée du chantier de la Grande Pyramide :
jeuxvideo.com / Tous les forums / Forum Blabla 18-25 ans / Topic Quelle est la durée minimale du chantier de la Grande Pyramide ?
Sujet : Quelle est la durée minimale du chantier de la Grande Pyramide ?
1234
Napodavoutxxvi
Napodavoutxxvi
MP
CiterBlacklisterAlerte01 octobre 2020 à 18:07:17
Je fais ce sujet pour faire une synthèse du débat égyptologique actuel, je ne donnerai pas une réponse toute faite, le débat n'est pas clos et ne le sera probablement jamais, à moins d'une découverte d'un document contemporain fiable et donnant les informations qu'on recherche. Je vais donc essayer de présenter les différents éléments dont on dispose, ce qu'il peut supposer, ce dont on est pas sûr etc...
La Grande Pyramide a été bâtie sous le règne du Pharaon Kheops, afin de commencer le raisonnement, j'énonce plusieurs postulats :
1) La construction a commencé lors de l'an premier de son règne, cette information est d'ailleurs documentée dans d'autres cas (pyramide de Redjedef, pyramide Raneferef). Dans d'autres cas, on sait que la construction s'est faite plus tard dans le règne, mais comme par hasard dans ces cas-là, on a des raisons de penser qu'il y avait d'autres pyramides bâties avant dans le même règne.
2) La première année du règne est une année complète, Kheops a commencé le règne le jour de la nouvelle année, cela nous évite d'ajouter un intervalle de plusieurs mois.
3) Si la construction a été finit de son vivant, Kheops est mort la même année. De cette façon on se base sur la durée du règne.
Commençons par la durée du règne.
La dernière connue du règne de Kheops est "l'année après l'année le 13 recensements" dans le papyrus de la mer rouge. C'est une année dite intercalaire.
Il faut que je fasse un petit point sur le comptage des années. On retrouve plusieurs dates, elles sont de deux types : 1) l'année du recensement du bétail
2) l'année après l'année du recensement du bétail.
Le recensement en question permettait d'établir les impôts. Nous savons, grâce à un fragment des annales historiques égyptienne (appelée Pierre de Palerme) que sous le règne du Roi Ninetjet (un Roi qui a vécu avant la première pyramide) , ce recensement était bisannuel c'est à dire qu'on a une succession d'année du recensement et d'année après l'année du recensement. Par conséquent, l'année après l'année du 13e recensement serait l'année 27 du règne. Cela est aujourd'hui remis en question. En effet, le règne de son père, Snéfrou, nous a livré un grand nombre de date, plus d'une quarantaine (souvent en double, triple etc), et de cet ensemble on en ressort seulement 5 années "après l'année du recensement". On a donc un déséquilibre, ce qui ne devrait pas arriver. Globalement, j'ai trouvé qu'il y avait un rapport (à peu près) de 1 année intercalaire pour 2,83 années du recensement dans la période de la IV à la VIe dynastie mais je ne suis pas sûr de ce calcul. Le déséquilibre est de toute façon flagrant. L'idée que l'année après l'année du 13e recensement correspond à l'an 27 du règne 'n'est donc pas évidente en soi.
Aujourd'hui il me semble que l'année après le 13e recensement soit la seule année intercalaire qu'on ait trouvée pour Kheops. Cela dit mes sources sont assez anciennes, je peux me tromper. De cette façon, on peut dire que le règne a duré au moins 13 années complètes avec 1 autre année qui va supposer complète pour pas compter en mois. On a donc minimum 14 années de règne. Cela sera notre durée la plus basse car nous avons postulé que si Kheops l'avait finit pendant son règne, il meurt la même année. Cependant, nous sommes obligé de rajouter au moins 1 année grâce à une date dont le sens fait débat.
En effet si on en restait là, le débat serait centré sur le calendrier égyptien. Mais il y a un autre élément.
Les tombes égyptiennes possèdent parfois 1 ou plusieurs fosses à barques. Dans cette fosse, on met un bateau en bois, ce bateau sera alors utile au défunt dans l'au-delà. L'importance de la barque est soulignée dans les textes religieux de l'époque (notamment le textes des pyramides) mais là n'est pas le sujet. On a trouvé différentes fosses à barques bien avant le règne de Kheops mais il semble que c'est une innovation pour une pyramide. Bref dans les années 50 on en découvre une encore scellée, dans les années 70 une date est signalée : l'année après l'année du 11e recensement. Le problème est que dans cette fosse on a aussi retrouvé le nom de Redjedef, successeur de Kheops. Or cette fosse à barque se trouve au sud de la pyramide, endroit en chantier perpétuel car la carrière de la pyramide se situe au sud.
'Ajoutons un autre postulat : cette date, si elle est de Redjedef, nous donne la dernier année du chantier.
Or il est pas sûr a 100% que cette date est bien de Redjedef, c'est néanmoins vraisemblable.
Sachant qu'il me semble pas qu'on ait des années intercalaires pour Redjedef, on a :
1) Si la date n' est pas de Redjedef : 13 + 1 + 1 (la nouvelle année après l'année du recensement est attribuée à Kheops) = 15 ans de durée de chantier au minimum.
2) Si la date est de Redjedef : 13 +1 + 11 + 1 = 26 ans pour la durée minimale du chantier.
Je précise qu'evidemment rien n'indique que l'année après l'année du 13e recensement soit l'année de mort de Kheops, l'egyptologue Pierre Tallet pense cela vraisemblable, je pense qu'il se trompe mais là n'est pas le sujet.
Complexifions les chiffres avec un système de comptage des années.
Imaginons 3 systèmes : 1) irrégulier strict 2) irrégulier proportionnel 3) bisannuel.
J'appelle le système irrégulier strict, un système où on pose seulement les années intercalaires attestées par l'archéologie comme existantes. J'appelle irrégulier proportionnel, un système où on pose 1 année intercalaire pour 2,83 années du recensement en arrondissant à l'année supérieur.
J'appelle système bisannuel, un système où il existe toujours une année intercalaire, cette thèse est pour moi fausse.
Voilà les chiffres:
1)Sans redjedef et irrégulier strict : 13+1+1 = 15 ans.
2)Avec redjedef et irrégulier strict : 13+1+11+1 = 26 ans
3)Sans Redjedef et irrégulier proportionnel : 13/2,83 = 4,6 donc on arrondit à 5. 13+5= 18
4)Avec redjedef et irrégulier proportionnel : 13/2,83 = 4,6 donc on arrondit à 5. Ça fait 18 ans de règne minimum pour Kheops. 11/2,83 = 3,88 donc 4. Ça fait 15 pour la durée du chantier sous Redjedef. 18 +15 = 33 ans.
5)Sans redjedef et bisannuel : 27 ans
6)Avec redjedef et Bisannuel : 27 +23 = 50 ans
Voilà donc la liste des durées minimales en fonction de deux variables : présence ou non de Redjedef, méthode de comptage des années.
Nous avons : 15 et 26, 18 et 33, 27 et 50.
Je miserais sur la 33 car j'estime l'idée d'un recensement bisnnuel comme réfutée par l'archéologie pour le moment. Je juge aussi invraisemblable que la date dans la fosse ne soit pas de Redjedef.
Je sais que très peu de gens liront mais au moins ça me fera un pavé à ressortir quand j'en aurais l'occasion
.
Bibliographie :
Bibliographie :
Le 18 juin 2021 à 11:44:27 :
J'aime beaucoup tes sujets
Aurais-tu une bibliographie à conseiller, concernant les pyramides et l'Égypte Antique en général ?
Cela m'intéresserait beaucoup (je suis étudiant, j'ai donc accès à une large bibliothèque universitaire
)
Ça fait plaisir
.
Pour l'Égypte antique en générale, tu as le livre de Pierre Tallet "Égypte pharaonique : histoire, culture et société" mais il est récent donc pas forcément déjà acheté par tes BU. Mais il n'est pas du tout nécessaire de commencer par un livre général, tu peux prendre les livres qui parlent d'un pharaon + sa dynastie, ça suffit largement car les auteurs sont obligés de détailler un minimum l'Égypte pharaonique pour rendre le texte compréhensible, voici ceux que j'ai lu :
-Djéser et la IIIe dynastie.
-Pepy 1er et la VIe dynastie.
-sesostris III et la XIIe dynastie.
Il existe ce genre de livre pour Sethi 1er, Toutankhamon et Merenptah si je dis pas de bêtise. Ces livres sont très bons, surtout celui sur Pepy 1er et la XIIe dynastie, que j'ai très souvent vanté
. Les pyramides sont bien sûr évoqué dans les livres cités plus haut car la pyramide était à la mode en tant que forme de la tombe royale à ces dynasties, mais ce ne sont pas des ouvrages généraux, comme livre général tu peux trouver :
-Les pyramides d'Egypte de JP Adam et Ziegler, c'est juste une entrée, car c'est assez court. Mais la bibliographie peut largement te guider dans des recherches plus amples.
-Le labyrinthe des pyramides, peut-être plus intéressant car ça explique plus en détail l'origine des pyramides.
-Sinon tu peux trouver des livres en Anglais très fiables, notamment ceux des tchèques qui traitent prioritairement de la Ve dynastie et des pyramides d'abousir, le 18e tome (Abusir XVIII) est fabuleux pour l'étude des pyramides de cette époque. Ils ont d'ailleurs fait un extraordinaire livre de synthèse sur Abousir : Abusir, the son of the sun. Les publications des tchèques sont extraordinaires
.
Malheureusement il existe finalement assez peu de livre de synthèse, tandis qu'il existe généralement des livres traitant d'un complexe funéraire en particulier, par exemple il y a les livres de Gustave Jéquier, un excellent fouiller, qui a publié des livres sur : le mastaba de Chepseskaf, les pyramides des reines de Pepy II, deux pyramides du Moyen-Empire, la pyramide d'Aba. Le livre de Michel Valloggia sur le complexe funéraire de Redjedef est l'exemple type, en plus d'être récent (les fouilles se sont achevées en 2007). Ironiquement, ce sont les complexes de Gizeh dont les ressources bibliographiques sont les plus difficiles à trouver, le complexe de Khephren a été synthétisé (je crois) dans les livres d'Holscher, qui datent de plus de 100 ans, et sont en allemand
(comme les livres d'Arnold sur les pyramides de Dashour du Moyen Empire : amenemhat II, III et Sesostris III).
D'une manière générale, je te conseille de commencer par le livre de JP Adam puis tu continues tes recherches de bibliographie en bibliographie
.
-------
Sur l'apparition soudaine des pyramides :
Le 19 juin 2021 à 22:30:07 :
Pourquoi les egyptiens ce sont si soudainement mit a faire des pyramides ? Et connais tu les premiers peuplement de l'égypte ce sont des natoufiens ?
On ne peut pas expliquer ce qui a motivé exactement la construction de la première pyramide, la pyramide a degré de Djéser, dire "ils voulaient faire grand" ne suffit pas, il faut une interprétation théologie, et cette interprétation elle se trouve dans des textes plus tardifs de près 300 ans, ce sont les textes des pyramides gravées dans plusieurs d'entre elles. Ces textes décrivent d'abord les pyramides comme des escalier (d'où les degrés) qui permettent au roi de monter au ciel, heureusement ces textes sont bien plus vieux que l'époque où ils ont été gravés, on le sait car il mentionne des fêtes qui existaient du temps de la première pyramide et non au temps de la gravure des textes, coup de bol. Cependant l'interprétation théologie de la pyramide "à face lisse" est à la fois plus difficile et évidente. D'abord elle n'exclut la première interprétation des pyramides à degrés car des pyramides lisses possèdent une pyramide à degré interne (Pepy II c'est bien visible par exemple) mais il existe des exceptions rares (pyramide satellite de la pyramide rhomboïdale est le seul cas attesté avec quasi-certitude). La pyramide lisse semble être d'origine solaire car elle est analogue aux obélisques dont la signification est beaucoup plus clair, sachant que le premier obélisque est justement documenté dans littéralement "un temple solaire". Les premiers bâtisseurs des pyramides lisses ont aussi des liens avec la théologie solaire, par exemple un des noms de Snéfrou, inventeur de la pyramide lisse, deviendra un titre porté par le Dieu ré, je pourrais continuer et faire une petite dissertation sur les indices d'une origine solaire de la pyramide lisse mais ça me soûle déjà
.
Par rapport au caractère "soudain", c'est difficile à dire. On sait que la première pyramide d'Égypte n'était pas prévu en tant que pyramide à l'origine, on le devine à sa face sud où on remarque un "mastaba", un massif rectangulaire dans la structure, c'est la première forme de la tombe. Et on sait qu'il y a bien eu un changement de plan de l'architecte car, dans la structure, ont été retrouvé des socles de stèle à l'est de ce premier massif, ils étaient donc prévus que ces stèles participent à un culte, mais la transformation en pyramide a englouti ces socles de stèles, l'émergence de la première pyramide est donc imprévue à l'origine. Cependant, il est possible que des tombes précédentes ait inspiré l'architecte Imhotep, bâtisseur de la première pyramide, la forme de la tombe du roi Adjib, Iere dynastie, est souvent évoquée car elle semble être à "degré". L'autre cas connu est la tombe de Nebetka, où, sur 3 faces, on observe un escalier.
Tombe de Nebetka, Ière dynastie, vizir du Pharaon Den (à vérifier).
Cette structure en escalier annonce-t-elle la structure de la pyramide a degré ?
Pour beaucoup non, pour une petite minorité oui.
Globalement, ces deux ancêtres ne sont généralement pas acceptés car la première pyramide fait appel à une technique tout à fait nouvelle : l'inclinaison des assises de pierre, et l'inclinaison des pierres vers l'intérieur du massif est liée directement à la forme du monument car elle permet de créer un édifice haut sans de soucis de glissement des pierres vers l'extérieur
Sur les pyramides peintes :
Sur les pyramides peintes :
Le 18 juin 2021 à 09:31:53 :
Pourquoi les ont pas peintes les Pyramides?
Il existe peut-être une pyramide peinte, il s'agit de la pyramide de Mykerinos. Son revêtement est d'abord en granite rouge jusqu'à la 15 ou 16e assise, au-dessus c'est du calcaire blanc (majoritairement pillé) mais on a retrouvé des fragments de ce revêtement avec de petites traces de peinture rouge, de façon à ce que la pyramide aurait été totalement rouge. De plus, les écrits du moyen-âge mentionne bien une "pyramide rouge" et une "pyramide peinte" qui correspond sans doute à celle de Mykerinos. La pyramide de Mykerinos est donc la seul candidat au titre de pyramide peinte.
Cependant, les traces de peinture qui restent sont infimes ce qui est suspect et les écrits antiques, comme ceux de Diodore, plus vieux que ceux du Moyen-Âge, ne mentionne aucune peinture, ni rougeur particulière. A ce titre, c'est douteux que la pyramide eut été totalement rouge car son revêtement de calcaire blanc aurait été peint en rouge.
Ça révèle une fonction de la peinture, faire passer une pierre (calcaire blanc ici) en une pierre plus luxueuse (granite rouge), ce type de pratique est courant. On sait que Mykerinos est mort pendant le chantier, donc c'est son successeur Chepseskaf qui a terminé le chantier, le budget a donc chuté et il a décidé, selon toute vraisemblance, de remplacer le granite très coûteux en calcaire blanc, et, peut-être peint en rouge pour faire illusion.
À part ça, aucune potentielle pyramide peinte.
Sur les pyramidions dorés :
Le 23 juin 2021 à 17:05:00 :
les pyramides étaient dorées
La documentation égyptienne conservée mentionne qu'au moins 2 pyramidions, c'est-à-dire le bloc constituant la pointe de la pyramide, étaient dorés. Ces pyramidions appartiennent au roi Sahourê et à la reine Oubjebten. Cependant il n'y a aucune raison de penser que ces pyramidions fassent office d'exception, car on a retrouvé des pyramidions avec des encoches, de façon à y encastrer à un morceau, possiblement en or, à la pointe de la pyramide.
Le pyramidion est la seule partie extérieur d'une pyramide d'Égypte à avoir été dorée. Cependant, certains sarcophages peuvent avoir eu des inscriptions dorées, comme le sarcophage de Mérenrê qui possède des traces de colle sur ses inscriptions
Sur Pi et Phi :
Le 23 juin 2021 à 17:11:15 :
Le nombre pi
Voici un de mes messages précédents évoquant Pi et Phi dans la Grande Pyramide :
"On retrouve Pi en faisant des rapports avec certaines dimensions parce que la pente de la Grande Pyramide est de 51 degrés, or cette pente provient de la pyramide de Meïdoum qui est antérieure, cette pente s'obtient après 2 changements dans les plans de l'architecte et cette pente sera utilisée par 4 pyramides, tandis que la pente du triangle égyptien de la pyramide de Khephren, un peu plus de 53 degrés, sera suivie par plus de pyramides royales. La postérité de la pente de Khephren est donc bien plus grande que celle de la pyramide de Kheops. Il n'y a donc pas de raison de penser que la forme exacte de la pyramide de Kheops soit la plus significative et que donc la présence de Pi dans une pyramide ait été important et significatif, ni même volontaire. S'il y avait un quelconque fetichisme mathématique envers Pi et Phi, alors ce serait cette pente qui serait la plus reprise. D'ailleurs, il n'existe aucune mention de Phi dans la civilisation pharaonique, il faut attendre 2000 ans après la pyramide de Kheops pour qu'on retrouve des mentions, dans des textes grecs. Pour Pi, on sait que plusieurs siècles après la pyramide, il arrivait à l'estimer avec une méthode archaïque, mais ils n'avaient aucun intérêt pour la valeur exacte de Pi, ils n'avaient d'ailleurs à cette époque aucun moyen de l'écrire. Le délire avec Pi et Phi est donc totalement anachronique et n'a rien à voir avec les mathématiques égyptiennes."
Différentes pentes des pyramides funéraires royales de l'ancien Empire :
Pente donnant Pi et Phi :
-Pyramide de Meïdoum (inoccupée)
-Pyramide de Kheops
-Pyramide de Niouserrè
Il est possible que la pyramide de Mykerinos ait deux angles différents à cause de sa base rectangulaire et qu'un des angles correspondent à la pente donnant Pi et Phi.
Pente du triangle égyptien :
-Pyramide de Khephren
-Pyramide d'Ouserkaf (?)
-Pyramide de Neferirkaré (?)
-Pyramide de Djedkarê-Isesi
-Pyramide de Téti
-Pyramide de Pepy 1er
-Pyramide de Mérenrê
-Pyramide de Pepy II
Quant à la coudée, elle existe déjà à l'époque des pyramides, ça c'est sûr. On retrouve parfois des inscriptions donnant des dimensions, par exemple un bloc de la pyramide de Meïdoum porte l'inscription"66 coudées au dessus du sol", et la pierre portant l'inscription est effectivement à cette altitude avec une coudée de 52,3.
Une vérification de mes sources est néanmoins nécessaire.
Sur l'esclavage :
On sait qu'il y avait un système de corvée pour "les travaux du Roi", on le sait car on a retrouvé des décrets qui justement permet à des hommes d'y échapper, généralement des équipes de prêtres. Au vu de l'importance de la construction de la pyramide dans le règne d'un roi, il est évident que ces levées corvées concernaient parfois la construction de la pyramide. Cependant rien ne nous permet de penser qu'il n'y avait que des ouvriers soumis à la corvée pendant le chantier, il devait y avoir des ouvriers hauts placés et spécialisés dans un domaine et qui faisaient véritablement carrière dans les chantiers du roi, on le sait car on a retrouvé des tombes de ces ouvriers qui revendiquent leurs postes dans la hiérarchie. Ça devait donc être un mélange des deux, des hommes soumis à la corvée, très probablement incompétent donc qui s'occupe soit de tracter les pierres, ou de les extraire et de les tailler grossièrement, et des hommes compétents et qui font carrière qui soit dirigent les autres ouvriers soit qui s'occupent de tâche complexe, comme le taillage des pierres du parement qui doivent très belles et régulières.
Sur les matériaux :
Le 24 juin 2021 à 21:49:53 :
On sait avec quels matériaux les pyramides ont été construites ? 
PS : as-tu un livre à me conseiller à ce sujet ? 
Je peux interpréter de deux manières ta question. On peut penser d'un côté aux pierres et aux outils, le terme "matériaux" est ambigu.
Cependant les deux questions ont une réponse fondée et fiable.
Pour les pierres, c'est la question la plus facile, l'immense majorité du massif d'une pyramide est constitué de calcaire, toujours local. Ce calcaire est destiné à être recouvert par du "calcaire fin" ou aussi appelé "calcaire blanc". Les deux carrières classiques d'où est issu ce calcaire sont les carrières de Tourah et de Maasara. Ce calcaire est particulièrement beau. On note aussi l'usage de granite d'Assouan qui vient de l'extrême-sud de l'Égypte. Ce granite peut servir à plusieurs utilisations spécifiques :
-Les premières assises du parement, assez rare.
-La maçonnerie de la chambre funéraire (Kheops, Mykerinos, Chepseskaf) voire des appartements entiers (Chepseskaf).
-Les herses et les bouchons qui bloquent le passage.
On note aussi parfois l'utilisation de greywacke pour les mêmes parties que le granite.
Quant aux outils, ils sont de différentes natures, je vais résumer très rapidement :
-Outil en cuivre, généralement durcis avec de l'arsenic, ce cuivre arsenicé se trouve au Sinaï. Ce cuivre peut servir à tailler les pierres en calcaire locale, c'est-à-dire pour des pierres plutôt tendres. On note aussi l'utilisation de scie en cuivre qui peuvent couper des pierres avec du sable comme abrasif.
-Outil en silex, pour tailler les pierres dures, mais c'est pour du travail de précision comme la gravure de hieroglyphe.
-Percuteur en pierre dure, comme des boules de granites et des boules de dolérite. C'est généralement pour du travail peu précis, comme l'extraction d'une pierre.
Il est notable qu'en décembre 1872, un outil en cuivre et une boule de dolérite ont été trouvées dans la structure de la Grande Pyramide, ces outils étaient coincés depuis la construction. On se demande bien pourquoi des êtres maîtrisant la technologie de l'anti-gravité ont laissé un outil en cuivre et une boule de pierre dans la structure.
Pour les livres, voici des ouvrages disponibles :
-Les pyramides d'Egypte, Adam et Ziegler.
-Le labyrinthe des pyramides.
Un livre publié qui devrait pas tarder à être réédité :
L'ère des géants de Franck Monnier.
Un livre qui sera publié en septembre :
-Panorame des pyramides d'Egypte par Franck Monnier, publication prévu en septembre 2021 chez Faton..
Outils découverts par Waynman Dixon en décembre 1872 dans la Grande Pyramide :
Il signale aussi un bout de bois. Ce bout de bois était perdu jusqu'il y a quelques mois où il est redecouvert dans un carton en Ecosse. Le bout de bois aurait été date de moins 3300 à moins 3000 avant JC, soit minimum 450 ans avant la construction. Nous sommes actuellement en attente de publication.
Sur les plans :
Le 22 juin 2021 à 01:27:32 :
Pourquoi on a jamais retrouvé aucun plan ni aucune indication sur la construction des pyramides?
Alors que d’après ce qu’on dit c’était les tombeaux des pharaons donc les constructions devaient certainement avoir un cahier des charges gigantesque ?
On a retrouvé une maquette représentant une partie des aménagements intérieurs de la pyramide d'Hawara d'amenemhat III, mais j'ai toujours eu du mal à lire cette maquette et à la lire.
On a aussi retrouvé plein "d'indication" sur la construction, mais ce mot est particulièrement flou, par exemple quand on chambre est quasiment détruite, on arrive encore à lire sa forme par des lignes tracées à l'encre rouge sur la maçonnerie derrière les murs détruits, exemple :
Je ne sais plus de quelle pyramide il s'agit ici, soit de celle d'inenek-inti soit de Behenou.
Cela dit aucun plan antique sur papyrus n'est connu à ce jour, aucun plan de l'Ancien Empire ne nous en fait venu, le plus vieux plan date du tout début du Moyen Empire, même si le Moyen Empire a construit des pyramides, nous n'en avons aucun plan au sens strict.
Sur les rampes de construction :
Le 22 juin 2021 à 11:41:16 :
Comment ont-elles été construites ? C'est vrai qu'ils construisaient une montée en terre pour emmener les matériaux jusqu'en haut ?
Ta première question est beaucoup trop large mais j'imagine qu'elle se concentre sur les techniques au vu de ta seconde question, donc je vais essayer de traiter les deux en même temps.
Tu évoques la théorie de la "rampe de construction". Tout d'abord, si on pense ça c'est qu'on en a effectivement retrouvé à différentes époques :
-Pyramide de Sekhem-khet, IIIe dynastie, 2e pyramide à avoir été construites, on y voit une rampe qui va jusqu'à 9 mètres, cette pyramide n'a jamais été achevée ni occupée (son sarcophage est vide).
-Pyramide d'El-Sinki, pyramide très petite, donc très petite rampe.
-Pyramide d'amenemhat Ier et Sesostris Ier à Licht, XIIe dynastie. Ces deux rois se suivent et on observe sur chacune de ces pyramides plusieurs rampes.
Ces rampes sont, il me semble, en brique, mais je n'exclut pas la présence de Pierre, j'ai un doute. Ces rampes étaient parfois équipés, comme chez Amenemhat 1er et Sesostris 1er, de traverse de bois comme les rails d'un trait. L'existence de rampe de construction est donc certaine, mais leurs présences est inconstantes. Parfois ça s'explique, par exemple à Gizeh il est impossible qu'on trouve jamais un morceau de rampe de construction identifiables avec certitude, car les pyramides ont été construites à la IVe dynastie, quand le plateau sera massivement utilisée jusqu'à la VIe dynastie, donc ils ont eu le temps de nettoyer le plateau des restes de rampe. Cependant on connaît des pyramides isolées inachevées qui n'ont aucune rampe, ou du moins aucune rampe n'a été détectée. Par exemple, la "pyramide à tranches" de Khaba (attribution incertaine) est inachevée car on a retrouvé aucune trace de parement, mais aucune trace de rampe, donc la pyramide doit être achevée (?). Ce site est néanmoins très peu fouillé, un jour peut-être trouverons nous un vestige de rampe encore sous le sable. On a aussi des rampes qui ressemblent plus à des rampes de destruction (donc bien plus tardives que les rampes de construction), une rampe au sud-est de la pyramide de Meïdoum est peut-être de ce type, tout comme une rampe à l'est de la tombe du roi Chepseskaf (qui a choisi une tombe en forme de sarcophage et non une pyramide), une rampe de destruction a aussi été localisée près du temple de Khephren située juste à l'est de sa pyramide. Il convient de préciser deux choses, 1) on retrouve aussi de simple route, voire des routes en pentes ayant servies pour la construction sans qu'ils s'agissent d'une rampe de construction servant à élever les blocs. Sur les vues satellites de la pyramide rouge de Snéfrou (109 mètres de haut, elle précède immédiatement la grande pyramide), on lit deux routes de plus d'1 kilomètres de long reliant les carrières à la pyramide. On a aussi un petit reste de route de 4 mètres au sud-ouest de la Grande pyramide construites en partie en pierre, mais il est impossible de savoir s'il date de la construction. Une route en pente a été détectée au sud-est de la pyramide de Mykerinos, cette route est parfois clairement visible dans les vues d'artistes du plateau de Gizeh, elle a été découvertes dans les années 1970. Il est impossible qu'il s'agisse d'une rampe de construction, mais il est très probablement d'époque car le complexe funéraire de Mykerinos a conservé enormément d'installations contemporaines. 2) Les rampes de constructions ne sont pas une particularité des pyramides, on possède d'ailleurs une représentation de rampe datant de la XVIIIe dynastie, à cette époque là pyramide n'est plus à la mode. La rampe est utilisée dans le bas-relief pour la construction d'un temple. On a d'ailleurs retrouvé d'immenses vestige d'une rampe pour le premier pylone de Karnak datant de la XXXe dynastie. Ces restes de rampes sont aujourd'hui détruits pour le tourisme mais ils sont encore visibles dans les photos datant d'1 siècle
Sur la détection et sur une pyramide royale inconnue :
Le 22 juin 2021 à 21:12:59 :
Est ce que le Lidar a déjà été utiliser en égyptologie ? J'ai lu que ca peux détecter des structures jusqu'à 3/4 mètres sous le sable, ca avait permis de découvrir une cité oublié en Irak. Tu parlais sur l'autre topic d'un pyramide encore sans doute non découverte, il y a des chances qu'on trouve un jour des restes d'une pyramide inachevé sous le sable ?
Je ne sais pas ce qu'est le Lidar
, je n'ai jamais entendu ce mot-là. C'est peut-être utilisé à Dashour, je sais que les allemands ont utilisé un truc pour sonder le sol au nord du temple de la Vallée de la pyramide Rhomboïdale et ils y ont découvert une structure de 350*200 mètres. C'est en cours d'excavation, et ça ressemble à une résidence d'un homme important, peut-être un chef des travaux.
C'est possible, mais il faut pas s'attendre à grand chose. Par exemple dans les années 80, les tchèques remarquent sur des photos satellites un carré orienté sur les 4 points cardinaux au nord-ouest de la pyramide de Sahourê, après je crois des fouilles sommaires, ils ont découvert un sol taillé avec une tranché au nord, c'est donc une ébauche de pyramide. Coup de chance 1) un roi au règne très court est cité dans les annales plus tardives à l'époque des Pharaons d'abousir, un certains Chepseskarê est cité et 2) lors de la fouille du complexe du roi Raneferef, très bien conservé parce qu'il était en brique (donc peu de pillage), on a retrouvé le nom d'un "Horus Sekhembau".
Donc pour moi, il est vraisemblable que Chepseskarê et Sekhembau sont juste deux noms différents pour une seule et même personne et que l'ébauche de pyramide lui "appartient".
À partir de là on peut imaginer une structure analogue quelque part à Saqqarah car des sources contemporaines la VIe dynastie (Pierre de Saqqarah-Sud, une archive qui a servie de couvercle de sarcophage à Ankhnespepy IV, mère d'un des derniers rois de l'ancien Empire, Neferkarê III), un roi Ouserkare a regné 1 ou 2 ans entre Téti et Pepy 1er. Ce roi a sans doute eu le temps de commencer sa pyramide à l'instar de l'Horus Sekhembau. Vassil Dobrev est actuellement à sa poursuite depuis près de 20 ans
Sur la diffamation de Kheops :
Le 22 juin 2021 à 21:26:26 :
Que penses-tu des récits de certains auteurs Grecs comme Hérodote qui décrivaient le constructeur de la grande pyramide de Gizeh (Kheops) comme un tyran cruel ? Il y avait notamment des rumeurs de prostitution de l'une de ses filles pour acheter des pierres dans le cadre de la construction de la pyramide 
Je pense que les prêtres ont mal jugé Kheops (déjà pourquoi est-ce qu'ils le diffamer ? quand Herodote débarque c'est la XXVIe dynastie, à cette époque ça fait 1500 ans que Kheops n'a pas eu de prêtres).
J'interprète pas le volume des pyramides comme une mesure de la tyrannie et de l'orgueil des rois, mais de leurs richesses. Si Kheops a fait cette pyramide, c'est parce qu'il a jugé qu'il pouvait la faire. On sait que les rois de Gizeh ont regné minimum de l'ordre de la dizaine d'année, mais il n'existe aucune preuve d'un très long règne de Kheops, Khephren ou Mykerinos. Alors qu'ensuite, on a des longs règnes, Pepy 1er et Pepy II dépassent d'après les éléments qu'on a Snéfrou (qui a bâti 1,5 grande pyramide avec ses pyramides), Djedkare est pas loin d'égaler Snéfrou et dépasse les rois de Gizeh. Pourtant ces rois ont des complexes bien moins volumineux qui, pourtant, ont des signes d'inachèvement. Le sarcophage de Pepy 1er est indigne d'un roi de cette ampleur, Pepy II n'a pas eu le temps de peindre ses voûtes ! Après Khephren, les richesses royales ont chuté (volonté du Nil ?), les pyramides ont donc perdu en volume, donc je pense que ce n'est pas une cruauté particulière ou un orgueil démesuré qui a uniquement causé ce chantier, mais bien la richesse royale. De même, si Ouserkaf a fait une pyramide de seulement 134 coudées de côtes (moins de 75 mètres), c'est parce qu'il pouvait pas faire plus, pas parce qu'il était plus sympathique
Sur les petites pyramides :
Le 19 juin 2021 à 21:08:27 :
On peut parler des petites pyramides ? J'ai entendu dire que les gens voulaient tous leur pyramide donc en faisait des toutes petites en masse sur la fin
/
C'est vrai, les dernières pyramides sont ridiculement petites par rapport aux premières, à tel point qu'elles ne sont même pas inclut dans la listes des pyramides d'Egypte, même s'il existe des pyramides minuscules dans cette liste car ce sont des structures au sens particulier et qu'elles datent de l'époque de l'ancien Empire et Moyen Empire, tandis que les minuscules pyramides, du Nouvel Empire, est juste le baroud d'honneur d'une forme de tombe en désuétude. Par exemple, la pyramide qui surmonte la tombe de Tiy, une sœur de Ramses II, est complètement ignorée car elle n'a que très peu d'intérêt. On retrouve aussi à Deir-el-medineh, la ville des ouvriers de vallée, quelques chapelles de forme pyramidale qui surmonte une tombe.
Petite sélection de petites pyramides :
-Pyramide-chapelle de Deir El medineh :
Nouvelle empire, surmonte une tombe, Nouvel Empire, pas incluse dans la liste officielle des pyramides.
-Plan de la superstructure de la tombe de Tiy, sœur de Ramses II :
La pyramide est à l'ouest. Nouvel Empire. Son étude n'a aucun intérêt.
-Pyramide "satellite" de la pyramide d'une reine de Pepy 1er ou Pepy II, sûrement Ankhnespepy III mais j'ai un doute :
Cette pyramide date de l'ancien empire. C'est une pyramide "satellite" donc dépendante de la pyramide funéraire royale. Incluse dans la liste des pyramides car son sens est encore obscure.
-Pyramide d'Athribis :
Pyramide située le plus au nord de l'Égypte, je crois. Aujourd'hui détruite. Petite a l'origine mais en brique, et non en pierre comme les standards de l'ancien Empire. Datation inconnue. Elle se rapproche des "pyramides provinciales" de l'ancien Empire car elle est petite et isolée, leurs sens est aussi très obscurs.
Cependant, les critères de la liste ne sont pas très clairs. La pyramide de Rehesychefnakht date du Moyen Empire, est petite, funéraire mais non royale, mais elle est pourtant incluse dans la liste officielle, uniquement parce qu'elle se trouve dans la nécropole de Pepy 1er,l'un des plus grands souverains de l'ancien Empire.
Sur les systèmes de fermeture :
Un bouchon ça bouche un couloir, voici le bouchon du "couloir ascendant" de la Grande Pyramide :
Plus bas, tu vois la suite du "couloir descendant" qui mène à la chambre souterraine inoccupée, on a aucune preuve que ce couloir ait au des bouchons soit de granite soit de calcaire. Globalement on a rarement des bouchons intacts, c'est même rare. On observe que le bouchon de granite est un classique, mais le bouchon de calcaire, nettement moins efficace et moins conservé, est certain aussi car on a retrouvé des descendries entièrement bouchées qui n'ont pas été détruite par les pilleurs, je connais deux exemples :
Descendrie la plus au nord de la pyramide de Khephren, descendrie ouest de la pyramide rhomboïdale. Ces deux pyramides ont deux descendries, seul cas pour l'Ancien Empire (il y aussi une seconde descendrie chez Mykerinos mais elle n'a servi que pour le chantier). Pour deux descendries, la pyramide rhomboïdale a deux chambres funéraires (innocupées) mais les deux chambres ont été explorées par les pilleurs, donc la seconde descendrie ouest a survécu au pillage, quant à Khephren la seconde descendrie mène à une autre chambre funéraire et rattache à l'autre descendrie par un couloir ascendant, la chambre est innocupée aussi et inutilisée, mais non explorée par les pilleurs.
On a un cas particulier de bloc bouchon, le bloc qui devait cacher l'entrée des appartements sur le parement de la pyramide. Dans les faits, on a aucun de ces blocs, à ma connaissance, mais pour la pyramide de Mykerinos, on a les blocs du parement juste à côté de l'entrée (ce qui est rare, ces blocs n'ont pas été pillé car ils sont en granite), or ces blocs de parement font cas de très sévères tentatives de destruction :
Il y avait donc ici un bloc de granite qui sert à la fois de bouchon et de bloc de parement.
Pour les herses :
Voici une herse granite encore en place :
Elle se trouve dans la "pyramide de l'ouest" dans la nécropole de la pyramide de Pepy 1er, son propriétaire est inconnue. Contrairement aux bouchons, il me semble que toutes les herses des pyramides royales sont en granite, sinon ça n'aurait aucun intérêt car les herses sont plutôt fines, parfois elles font juste 30 cm. Cette herse est aujourd'hui à l'air libre car la superstructure de la pyramide est très endommagée. Il y a deux systèmes de glissières pour les herses, soit les glissières sont verticales dans l'immense majorité des cas, par exemple en 1818 Belzon trouve l'entrée de la pyramide de Khephren et tombe face à une herse granite (bloquée par une petite pierre). Étant un colosse, Belzoni arrive à lever la herse de granite par le haut et la bloqué bien plus haut, le passage est donc plus aisée. Cette herse est aujourd'hui quasiment intégralement détruite. On a aussi un cas unique de herse dans la pyramide de Djedkare-Isesi, cette fois-ci les herses n'ont pas des glissières verticale, mais horizontale, plus exactement vers l'est, c'est le seul cas que je connaisse.
Le seul tombeau royal de l'ancien Empire qui dispose encore de toutes ces herses est le tombeau de Chepseskaf qui n'est pas une pyramide mais a la même fonction. Ces trois herses de granite sont encore en place levée par une pierre.
Ce système de herse est moyennement efficace (en fait aucun système de herse n'est très efficace car de toute façon on sait que le couloir continu donc il se suffit de creuser). On observe par exemple, dans la pyramide de Téti, les traces des pilleurs, on sait qu'ils se sont contentés de brûler les herses en granite, ce qui affaiblit la roche, et ont ensuite taper dessus, ils ont donc enfumé le couloir des herses. Ces pilleurs étaient des débutants qui ont juste été patient.
On a aussi des systèmes de herses parfois plus élaborés et coûteux, comme dans la pyramide rhomboïdale de Snéfrou qui innove avec un systeme de herse avec un immense bloc penché qui doit être lâché pour glisser et finalement bloqué le couloir. Voici une illustration :
Malgré ce système plutôt développé, les herses de la pyramide rhomboïdale n'ont pas toutes été abaissées. Pour tout te dire, la pyramide rhomboïdale c'est Snéfrou à la IVe dynastie, donc ancien empire, donc au tout début des pyramides, la pyramide a été inventée 100 ans avant et il n'y a pas encore de "pyramide à face lisse" typique de l'Égypte antique, c'est Snéfrou qui y arrivera avec la pyramide rouge, construite juste après la pyramide rhomboïdale. Au passage, la pyramide rouge ne montre aucun système de herse. Pour l'Ancien Empire, le système de herse de la pyramide rhomboïdale n'aura aucune postérité, il faudra atteindre au minimum le moyen Empire, plus de 600 ans après Snéfrou pour que ce système ait une postérité
Exemple, pyramide d'ouserkare-khendjer :
Exemple de la pyramide anonyme de Saqqarah-Sud, juste à côté de celle d'ouserkare-khendjer :
On y voit, successivement 2 puis 3 blocs de herses encore en place. Ce système semble avoir un défaut, il arrive que les blocs restent en position sans glisser donc sans boucher le passage. Il me semble que la pyramide d'ouserkare khendjer a des herses qui n'ont rien pour les retenir, donc on ne sait pas comment interpréter cela : inoccupation du tombeau ? Problème de construction où la herse est mal faite ? Il se trouve que la pyramide de Saqqarah-Sud n'a aucun signe d'occupation, mais il y a des plus gros doutes pour Ouserkarê-Khendjer.
La grande pyramide est un tombeau :
Le rôle principal de la Grande Pyramide pose de nombreuse questions, mais seulement sur internet où des non-égyptologues spéculent. Leur défaut est toujours le même : l'abstraction total de la Grande pyramide ce qui ne peut que mener qu'à une analyse techniciste de la pyramide, c'est-à-dire une analyse qui ne voit dans la pyramide que des éléments "utiles" à quelque chose, des éléments dont tous auraient une fonction. C'est ainsi que fleurissent toutes les théories voyant dans la Grande Pyramide une centrale électrique ou je-ne-sais-quoi. En réalité la question du rôle principal de la Grande Pyramide est aujourd'hui résolu. Il s'agit de toute évidence du tombeau du roi Khoufou, hellenisé en Kheops par la tradition. Certaines personnes perspicaces vont alors me rétorquer qu'on a pas retrouvé de momie à l'intérieur. Premièrement, au Moyen-Âge, Abu salt, cité par El-Edrisi puis par Al-Maqrizi, relate la découverte d'un cadavre en mauvaise état dans le sarcophage de la Grande Pyramide par le calife Al-Mamoun au IXe siècle, cependant je suis d'accord sur le manque de fiabilité de ce texte, car on possède plusieurs récits des actes d'al-Mamoun concernant la Grande Pyramide. Secondement, l'absence de découverte de momie n'est pas gênante, je vais vous montrer pourquoi.
Avons-nous retrouvé des momies dans les pyramides de l'Ancien Empire Égyptien ? La réponse est oui, si quelqu'un dit non à cette question, vous savez déjà que cette personne est incompétente. Cependant, beaucoup de ces ossements sont aujourd'hui perdus, comme ceux de la pyramide G III-B qui est la pyramide centrale des trois petites pyramides au sud de la pyramide de Mykerinos. Certains sont encore conservés de nos jours, comme les ossements découverts en 1951 par Batrawi à l'intérieur de la pyramide rouge, comme la momie quasiment complète découverte dans la pyramide de Mérenrê à Saqqarah. Cependant, ces deux exemples ne sont pas identifiés comme appartenant au Roi par manque d'analyse. La datation au carbon 14 est la première étape pour l'identification de restes de momie au roi propriétaire de la pyramide. C'est ainsi qu'une main mommifiée appartenant à un jeune-homme de 20 ans, en sur-poids, a été découverte dans la chambre funeraire de la pyramide inachevée de Raneferef à Abousir, elle est aujourd'hui contemporaine de la dynastie de ce roi, c'est pourquoi elle est considérée comme un authentique reste du roi Raneferef. Mais, on peut néanmoins considéré cela comme insuffisant. On a des restes de momies mieux identifiés, notamment ceux du roi Djedkare-Isesi qui règne 2 règnes après Raneferef. Ces restes ont été découvert en 1945-1946 :
Là encore on tombe sur l'ancien Empire, voire légèrement plus vieux. Il faut savoir que la tendance globale du C14 est de vieillir légèrement les dates de l'ancien Empire. La date traditionnel du début de l'ancien Empire est moins 2700, il ne serait pas étonnant qu'au fil des décennies la date recule dans les livres.
Vous voyez qu'en même temps, les ossements de Hedjetetnebu et Khakerernebty ont été datés. Ce sont des "filles du corps du roi", très probablement de Djedkare-Isesi lui-même. Ces ossements ont été trouvés dans leurs propres tombes. Hedjetetnebu a une tombe dans la partie sud-est d'abousir, elle se trouve dans un petit encombrement de tombe à l'est de la pyramide inachevée du roi Raneferef, tout comme Khakerernebty.
Voici une analyse des ossements datés de 1992 pour identification de la famille royale :
https://link.springer.com/article/10.1007/BF02447609
Voici une conclusion d'un autre article :
C'est d'ailleurs de cet article que sont issus les photos des restes de Djedkare :
Il apparaît donc que la pyramide de Djedkare-Isesi a bien été habité par son propriétaire, car l'analyse des ossements montre une parenté entre les ossements de la pyramide de Djedkare Isesi et les ossements de deux tombes de "fille du roi". Le nom du prioritaire se trouve abondamment dans le temple situé à l'Est, c'est ça qui a permis l'identification de la pyramide à Djedkare-Isesi.
Maintenant, on a deux rois, Djedkare-Isesi et Raneferef, qui ont bien été enterrés dans leurs pyramides, même si celle de Raneferef est très inachevée.
Maintenant, il faut que je parle des papyrus d'abousir. Ce sont des papyrus d'archives découverts lors des fouilles. Ces papyrus tiennent des calendriers des cultes, des fêtes ainsi que des journaux d'inventaires. Ils nous permettent ainsi de saisir ce qu'il se pensait dans le temple "funéraire" qui se trouve traditionnellement à l' Est des pyramides. 3 lots d'archives nous sont parvenus, tous de la Ve dynastie, ils proviennent des temples des rois suivant :
-Neferirkaré-kakai
-Khentkaus II, reine, épouse de Neferirkaré et mère Raneferef et probablement mère de Niouserrè.
-Raneferef.
Raneferef nous a donc livré des archives, tout comme sa main, voici à quoi ça ressemble un papyrus d'archive :
Ce papyrus provient du temple de Neferirkaré.
Ainsi en examinant ces papyrus, on sait qui effectue le culte du Roi mort.
Or, voici ce que dit l'egyptologue Miroslav Verner après avoir analysé les papyrus des cultes du roi Raneferef :
On y apprend que deux titres de prêtres se retrouve : le hem-netjer et le wab-priest. En français ça donne le "servant du Dieu" (certains traduisent par "prophète du Dieu" pour souligné que ce titre est haut dans la hiérarchie cultuelle) et "prêtre-pur". Le cas du "servant du Dieu" est un titre dont la vie traverse l'Égypte. A la première dynastie, le premier servant du Dieu est identifié, le titre survivra pendant des millénaires, je sais qu'il existe encore des "servants du Dieu" à la basse-époque et à l'époque grecque, mais j'ai pas vérifié pour l'époque romaine. Par exemple au Nouvel-Empire, le grand prêtre d'Amon à Karnak, n'est en fait littéralement que "le grand hem-netjer d'Amon". Le "servant du Dieu" ne concerne pas que les dieux, mais aussi les rois morts, c'est pourquoi on retrouve à la fois "hem-netjer de Raneferef" que des hem-netjer de dieu.
Voici une liste de plusieurs titres de servant du Dieu, present dans la these de Michel Baud :
On sait donc que les hem-netjer et les wab-priest officient dans le temple d'une pyramide funéraire royale. Cependant on a d'autres institutions liées à la pyramide funéraire royale comme "la ville de la pyramide" où loge des prêtres.
Étudions enfin le cas de la Grande Pyramide, sa situation est-elle analogue que celles des pyramides suivantes, a-t-elle des hem-netjer ou des wab-priest ? Ou une ville de la pyramide ?
Tout d'abord, je suis obligé de certifier son attribution au roi Khoufou :
Une tombe règle rapidement le problème, celle de Djaty, enterrée à moins de 200 mètres du coin nord-ouest :
http://giza.fas.harvard.edu/sites/803/full/
Voici ce qu'on y trouve :
La traduction du texte encadrée est : "going downstream in peace to Akhet-Khufu to the tomb". Le mot "Akhet-Khufu" est accompagné du hiéroglyphe "pyramide" qu'on appelle un determinatif dans la grammaire égyptienne. La pyramide "Horizon de Khoufou" (traduction du nom) se trouve donc à côté de la tombe de Djaty et c'est évidemment la Grande Pyramide. Bien entendu c'est pas la seule preuve.
Voici un bloc trouvé lors des fouilles du temple situé à l'est, le dallage noir qu'on voit encore aujourd'hui pour les connaisseurs :
On y voit une représentation du roi Khoufou, dernière on lit après un cartouche perdu "Akhet". Ensuite on lit le haut du hiéroglyphe "pyramide", il s'agit donc du mot "Akhet-Khufu" car Khoufou est le seul roi à avoir appelé sa pyramide comme ça.
On retrouve aussi un autre nom de Khoufou, Medjedou, sur une pierre :
L'identité entre Khoufou et Medjedou est certaine par des reliefs du Sinaï représentant le roi avec ces deux noms :
Un troisième nom existe aussi "Khnoum-Khoufou". Ces trois noms se trouvent à l'intérieur de la pyramide, dans des petites chambres situées au-dessus de la chambre du roi. Ces chambres ont été ouvertes à la fin des années 1830 :
Ce sont les inscriptions de la chambre dite de "Campbell" on y lit deux hiéroglyphes, un caché et un contenant le nom Khoufou.
Photo du cartouche :
-Débauche de nom dans la chambre dite de "Lady Arbutnot" :
On lit ici que des "Khnoum-Khoufou" et "Medjedou".
-Un hiéroglyphe contenant le nom de Khnoum-Khoufou a aussi identifié sur la face ouest :
Aucune photo n'existe cependant.
-Le Nom de Khoufou a aussi été identifié sur le bloc déplacé en 2011. Ce bloc cachait une barque solaire, comme découverte dans les années 50 d'après cet article :
https://luxortimes.com/2011/06/second-solar-boat-uncovered/
Aucune photo connu.
À cela s'ajoute l'existence de dizaine et de dizaine de Hem-netjer de Khoufou dans les parages, surtout dans le cimetière à l'est de la pyramide et dans le cimetière ouest.
Petite liste de "hem-netjer de Khoufou" :
-Mérititès, qui a commencé à la servant du Dieu Khoufou dès la IVe dynastie, elle a connu Khoufou de son vivant.
-Khemetnu, lui aussi actif dès la mort de Khoufou.
-Kau
-Washptah
-Qar
-Dag
-Kaemjenenet
-Seneb
-Semerka
-Téti, comme le premier roi de la VIe dynastie
-Kahif
On retrouve aussi, tout autour de la pyramide, des gens plus haut dans la hiérarchie :
- Kanisut est "Inspecteur des prêtres-purs (wab-priest) de la pyramide Horizon de Khoufou" ainsi que "Chef de la ville de la pyramide Horizon de Khoufou" :
- Nekahep est "servant du Dieu Khoufou" et "servant du dieu Khoufou présidant (?) la pyramide Horizon-Khoufou" :
- Akhethetep est "Inspecteur des servants du Dieu de la pyramide Horizon de Khoufou".
Tous ces gens sont enterrés à Gizeh. On est donc face à une double conclusion tout à fait vraisemblable et dépassant le doute raisonnable :
-La grande pyramide a pour propriétaire Khoufou.
-Un culte, analogue à celui de Raneferef dont on a retrouvé des restes du corps dans la chambre, se déroulait dans la pyramide appartenant à Khoufou.
On peut donc conclure que Khoufou était enterré dans sa pyramide. La Grande Pyramide n'est donc pas une pyramide dont nous sommes incertain du propriétaire, l'attribution à Khoufou est très bien fondée, tout comme l'existence d'un culte et donc d'une fonction funéraire. Les rois de l'Ancien Empire avait cependant d'autres lieux de culte, sans que ce soit leurs tombeaux, on compte deux autres endroits :
-Les temples solaires, qui apparaissent sous Ouserkaf et qui disparaissent après Djedkare. Ces rois lui sont postérieure, il n'y a donc aucun temple solaire de Khoufou.
-Les "maisons du ka" qui sont de petits temples pour le roi. Elles apparaissent à la VIe dynastie avec Téti. Deux maisons du ka sont bien conservées à Boubastis, au nord-est de l'Égypte. J'ai par contre un léger sur le début de cette pratique, il est possible qu'elle ait commencé à la fin de la Ve dynastie mais flemme de vérifier. Aucune maison du ka de Khoufou n'a été trouvée. Cependant, un Inspecteur des prêtres de Khoufou a été repéré en Moyenne-Égypte, il s'agit de Sérefka, certains se demandent si c'est pas un indice de l'existence du maison du ka de Khoufou en Moyenne-Égypte car pourquoi un prêtre s'est-il enterré si loin de son lieu de travail ?
À tous ces arguments s'ajoutent des tas de considerations historiques :
-La première pyramide est à l'origine un mastaba transformé, or le mastaba est une tombe, qui d'ailleurs continuera d'être utilisé, la grande pyramide en est encerclé et les mastabas nous fournissent des restes de momie massivement, car les mastabas sont moins pillés car plus petits.
-À partir de la pyramide d'ounas, les pyramides de l'ancien Empire possède des textes, appelés "textes des pyramides" mentionnant la fonction funeraire. Ces pyramides comme la grande pyramide ont des hem-netjer, des wab-priest et une ville de la pyramide. Ces textes des pyramides seront d'ailleurs utilisés au Moyen-Empire dans certains mastabas.
-La tradition égyptienne fait bien de la pyramide un monument funéraire, des pyramides plus petites se trouvent dans des nécropoles du Nouvel Empire ou de la basse-époque. Quand Herodote débarquera en Égypte, il sera en pleine époque de renaissance religieuse. Après 1500 ans d'inactivité, des prêtres de Khoufou sont apparus à cette époque-là. Les romains bâtiront aussi des pyramides-fuberaires dès la conquête de l'Égypte. Les écrits du moyen-âge mentionnent massivement la pyramide en tant que tombeau.
La Grande Pyramide appartient donc bien à Khoufou, et est bien son tombeau, au-delà du doute raisonnable.
Afficher uniquement les messages de l'auteur du topic